:(This page launched on Sept. 10, 2012 and is periodically updated. For reporters who want to pursue an undercovered angle, consider Forest City Ratner's second and third rounds of immigrant investor funding, or the issue of accountability, including the failure to hire a promised Independent Compliance Monitor for the Community Benefits Agreement.)
“If you gain a competitive advantage by cheating, then you won’t get a meritocracy, you’ll get a system where cheaters prosper and bad ethics drive good ethics out of the market.”
--Former S&L regulator Bill Black, in Salon, 3/16/14
The forgetting began before the arena opened in September 2012. New York Magazine critic Justin Davidson, in a 9/21/12 review headlined Barclays Center Is Brooklyn’s Ready-Made Monument, wrote:
The arena won’t placate those who all along hated the idea of Atlantic Yards. It won’t erase the years of controversy and bad blood, or guarantee the success of the remaining acres. But Brooklynites of more recent vintage and fewer bitter memories may see a building endowed with texture, color, and personality — rare qualities in recent New York construction.That's not the issue. The controversy, the deception, and the obfuscation continue, in different forms.
The Barclays Center opened Sept. 28, 2012. The parade of entertainment and Brooklyn's first arena provoked huge media attention and much praise, even if the roaring success in the first year was followed by a significant drop in tickets sold and gross revenues.
The looming, metal-clad arena, unmistakable at the intersection of Atlantic and Flatbush avenues, forming a new node just past long-accepted downtown boundaries, was enough to convince some journalists, like a New York magazine sportswriter who willfully puts on blinders when it comes to the political implications of sports, that the “battle is over, and Bruce Ratner won it.”
Many may agree, but that relies on unwillingness to analyze claims of Atlantic Yards promises and benefits, and belief in Ratner's assertion that “Nobody will remember what we had to do to make it happen.”
Architecture critics, event-goers, and just plain locals may be impressed by the the arena, it cannot be seen in a vacuum, and the taint should not be ignored. The value of the Brooklyn Nets, thanks largely to the new location and new building, more than doubled between 2012 and 2014, promising profits to majority owner Mikhail Prokhorov.
Benefit to the public?
But the public benefit of the project--the arena, plus 16 towers, with promises of jobs, housing, and hoops--is far more fuzzy, and the damage to democracy is clear.
There's no legal corruption, though Forest City has been singed in corruption cases involving former Sen. Carl Kruger and in Yonkers. Nor is every decision or statement suspect. Still, Atlantic Yards relies upon a "culture of cheating," a term inspired by The Cheating Culture: Why More Americans Are Doing Wrong to Get Ahead, a book by business ethicist David Callahan.
"I want to get it done," Mayor Mike Bloomberg told Ratner on the June 2003 day the developer unveiled the plan to the mayor. "Get it done no matter what."
Such an ends-justify-the-means attitude pervades the project, involving, at various times, project promoters, consultants, lawyers, and community partners. (Also see my Reuters Opinion essay, Brooklyn's vaunted, tainted Barclays Center.)
Interestingly, the New York Times, which has rarely looked at Atlantic Yards aggressively, in some ways endorsed this thesis, albeit buried in a long 9/27/12 profile of developer Ratner, describing "his reputation for promising anything to get a deal, only to renegotiate relentlessly for more favorable terms."
"We've been robbed, and I've seen people go to jail for less," declared Umar Jordan, a community organizer, speaking in September 2012 about the unfulfilled promises for jobs and contracts. Jordan, six years earlier, was a prominent project supporter portrayed by the Times as exemplifying the racial divide over the project. (No one but this reporter followed up.)
Atlantic Yards, announced in December 2003, approved in December 2006 and again in September 2009, will be remembered, not just for its promises, but also, as Ratner might put it, for "what we had to do."
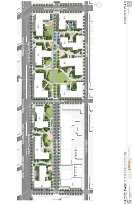
![]() |
| A real park or tower backyards? |
It’s almost all legal--well, judges in 2012 confirmed serious civil illegality: that Empire State Development (ESD), the state agency with the awkward task of shepherding and overseeing the project, had evaded the required environmental review, failing to study potential impacts after a promised ten-year timeline was extended to potentially 25 years, with a 2035 outside date for completion
Though too late to affect the arena, that not only left a taint but required a new review of the project's second phase. That taint was reaffirmed in September 2013 when a state judge affirmed that the attorneys bringing that lawsuit were entitled to legal fees.
The Supplementary Environmental Impact Statement issued by ESD essentially said that everything was fine, but acknowledged new oversight was needed.
The new timetable, and the new twist
Forest City and its new partner, the Shanghai-government owned Greenland Group, agreed in June 2014 to speed up the project, to get the affordable housing finished by 2025, not 2035. That's significant progress, given potential penalties that would kick in for late buildings, and the need for affordable housing.
But, as always, there's a catch: the highly touted two new all-affordable buildings would differ significantly from the housing long promised, and be skewed to middle-income households, paying more than $3,000 for a two-bedroom apartment. That's a huge disconnect with Mayor Bill de Blasio's goals, as well as the promises Forest City long made for deeper affordability.
And, as I explained in a long article for BKLYNR in August 2014, de Blasio's claim that the city's getting double the affordable housing for the same investment is bogus, because it's not the same affordable housing.
And there are significant loopholes regarding the penalties if subsidies or financing are not available.
Also, Forest City has obfuscated about its role in the partnership, though Greenland--a foreign government!--would control the new joint venture.
The misleading view, and an unwise award
Even the most common--and, by many, quite welcomed--perspective on the arena is a dodge. People like the plaza in front of the arena as a place to gather. It serves as a transition between the street and a large but not hugely tall building.
It's essential to what Vishaan Chakrabarti, an academic planner/architect as well as a partner in SHoP, deems the "high-low city."

But there was never supposed to be a plaza there. That was the site for an office building standing some 510 feet high, housing an atrium (aka Urban Room) for crowds to gather.
It would have made--it would make--the intersection of Atlantic and Flatbush avenues appear far more jarring.
Atlantic Yards likely would not have been approved without that office tower. That tower is on permanent hold and, as of February 2016, the bulk may be moved--astonishingly--to Site 5 across the street. (A few months earlier, when news of this plan leaked out, Forest City Ratner lied and said the report was inaccurate.)
Ratner, now Forest City's Chairman, and MaryAnne Gilmartin, the company's CEO, in 2014 were awarded the Municipal Art Society's (MAS) highest honor, the Jacqueline Kennedy Onassis medal. However impressive of their buildings, the award ignored the questionable process behind them and seems a clear departure from MAS goals like a commitment to historic preservation and to empowering local communities.
It's business
The arena, Ratner claimed in September 2011, is "largely about the children and youth of Brooklyn." The proliferation of corporate logos suggests otherwise. As Barclays Center/Brooklyn Nets CEO Brett Yormark has said, "[W]e are excited to continue to partner with brands of excellence."
Yormark, it should be noted, was eager to proceed with the long-anticipated, nationally-televised home debut of the Brooklyn Nets Nov. 1, 2012, against the New York Knicks, despite the devastation to the city and transit system wrought by Superstorm Sandy.
"We also feel today this can be in many respects a rallying cry for New York," Yormark claimed. "We have to move on." ESPN scribe Ian O'Connor deemed the plan to hold the contest "heartless" and "clueless." Facing reality, Mayor Mike Bloomberg finally nixed the game.
Consider how the Atlantic Yards arena was promised as a "community arena," with accommodation for local sports teams, school sports, and community events--and the Barclays Center's first and second years didn't match up.
"Do-gooder, liberal"?
Original architect Frank Gehry, whose grasp of development politics appears (in retrospect) enormously shaky, described Ratner as"politically like me" and a fellow "liberal, do-gooder".
According to an interview in the Jewish Voice, "Ratner is a staunch Democrat and liberal and cannot imagine people, especially Jews, who are not."
For Ratner, however, business considerations have always trumped ideology. In November 2010, Ratner wrote a check for $7500 to the New York State Senate Republican Campaign Committee, ensuring smooth relations with the party that controls the legislature's second chamber.
Barclays as partner
In a September 2012 Q&A, Yormark talked about the naming rights deal with a questionable company: " For me, what I'm most proud of is the cultural fit for Barclays." Similarly, Ratner praise his partnership with Prokhorov, who got rich through connections: "We have the same kind of values and culture."
In both cases, Yormark and Ratner were talking about doing business deals, but the issue of "cultural fit" has broader, more ominous resonance.
If Atlantic Yards represents the "culture of cheating," then isn't naming rights partner Barclays a perfect fit? Barclays is an admitted cheater, paying $450 million to settle charges of interest rate manipulation. The executive who negotiated the naming rights agreement, Bob Diamond, resigned in disgrace. In 2015, Barclays pleaded guilty to felony charges.
As I've argued, state contracts seem to require that Barclays, now an admitted felon, to lose the name of the arena.
Deception from the start
This was a jaw-dropping fib from a 12/10/03 Forest City Ratner press release announcing the Atlantic Yards project: "The complex has been planned to look whole and complete during each phase of construction."
As I reported, buildings were to replace parking as the project proceeds. The construction schedule indicated much incompleteness, as did the map of buildings that would be finished year after year.
A "civic developer"
"Our company is really what I call a civic development company," Ratner likes to say. "We do a lot of civic projects. And every project that we do has to have some civic component."
Except "civic" is a fuzzy term, and Ratner has made two self-sabotaging--if rather little-noticed--statements that back up charges of cheating:
- he repudiated the ten-year timeline to build the project previously endorsed by his company and the state
- he claimed that high-rise, union-built affordable housing isn't feasible, even though that's what he long planned and the state approved twice
A tainted approval process
Atlantic Yards never got a vote, not from local elected officials in City Council or even state officials. Instead, it went through the ESD (aka Empire State Development Corporation, or ESDC), a state authority set up in the wake of the assassination of Martin Luther King to bring housing to recalcitrant suburbs. Instead, the "truly amazing powers" of the agency are used by the governor to boost business.
It was long promised to take ten years. Instead, after the project was re-approved in 2009, the ESDC revised contracts giving the developer up to 25 years. That Development Agreement was withheld when project opponents challenged the timetable in court.
First, a state judge ruled against the challengers, the ESDC’s “deplorable lack of transparency” and acknowledged that the ESDC’s use of a ten-year timeframe for the project buildout in the Modified General Project Plan was supported “only minimally.”
Only later, after the challengers reopened the case, did the judge revise her decision and order a new review of the environmental impacts of a potential 25-year construction period.
Not only did the judge order a Supplemental Environmental Impact Statement, which was ongoing in 2013, in September 2013 she awarded legal fees to the attorneys representing Develop Don't Destroy Brooklyn and BrooklynSpeaks, the two winning coalitions. The state, using Forest City Ratner's money, agreed to pay the fees rather than appeal.
Jobs
Then-Governor David Paterson, in a froth at the March 2010 arena groundbreaking, claimed that Atlantic Yards would have "job creation the likes of which Brooklyn has never seen."
Well, Brooklyn hasn't seen it, not the once-promised 15,000 construction jobs and certainly not the 10,000 permanent jobs. And much-hyped Jay-Z, whom savvy sportswriter David Roth called the Nets' "resident Brooklyn-credibility totem," got to blather about how "it's already created so many jobs," and the press doesn't check.
Upon the arena's opening, Bloomberg and then-Borough President Marty Markowitz called the arena a job magnet--though nearly all the jobs are part-time and low-paying--and the numbers seem inflated.
The failure to deliver promised jobs provoked Jordan, who spoke passionately for the project in an August 2006 public hearing and became a purported representative of the racial divide over Atlantic Yards, to more register his disgust.
Despite happy talk from arena reps about those 1900 part-time jobs and how the hourly wage is above "living wage," these are not living-wage jobs, since the definition depends on a 40-hour work week.
EB-5 job program
Forest City in 2010 first used a questionable job count to leverage some $228 million in low-cost financing via a federal program, EB-5, that gives immigrant investors visas in exchange for purportedly job-creating investments.
Markowitz, unable to join Forest City Ratner on a fundraising trip to China, nevertheless taped hyperbolic praise for the project. asserting that Brooklyn was "1000 percent" behind Atlantic Yards--a preposterous claim--and asserting that Forest City's reputation was "unbelievably reliable."
He later became more candid, acknowledging that Atlantic Yards is "among the most contentious developments" in the country's history.
Despite the numerous misrepresentations in the first round of EB-5 funding, in the fall of 2013, Forest City and Greenland began a second round of fund-raising, aiming to raise $249 million and apparently reaching that goal.
Again there were blatant misrepresentations in the pitches. Beyond that, this effort approached a new level of audacity: the Chinese government would profit by selling U.S. green cards to Chinese immigrants.
That second round was successful, apparently, with only glancing, after-the-fact mainstream press notice. (One tough analysis of the EB-5 program has emerged, as a Fortune magazine cover story.)
A third round, aiming to raise $100 million, began in 2014 and improperly tried to suggest that a State Department official was on board.
The fundraisers quickly deployed a photo op (right) with de Blasio and Greenland Chairman Zhang Yuliang.
The inside track with the MTA
The key piece of public property is the 8.5-acre Vanderbilt Yard. Forest City Ratner not only had the inside track from the beginning, after it bid less cash than the one rival that emerged--$50 million vs. $150 million--the Metropolitan Transportation Authority in 2005 agreed to negotiate exclusively with Forest City. The developer then raised the cash bid to $100 million.
Then, in 2009, Forest City successfully re-negotiated the deal, getting the MTA to accept only $20 million down for the portion of the railyard needed for the arena, with 22 years to pay off the rest, at a gentle interest rate. It could build a smaller, cheaper railyard.
The deal survived a legal challenge, but the question lingers: did Forest City really have the MTA over a barrel, as the state contended? Instead, evidence suggests that the agency had leverage: it was Forest City that had to move the money-losing Nets from New Jersey, and faced an end-of-2009 deadline to have tax-exempt bonds issued.
Since 2009, Forest City has twice gotten the MTA to revise the contract, pushing forward the official start of the permanent railyard. That left questions about the promised schedule for that railyard and for the subsequent platform and the towers built over that platform.
Eminent domain and blight
The state exercised eminent domain for Atlantic Yards based on some rather suspect logic:
- Forest City Ratner drew the map of the 22-acre project site, with the oddly missing gap in the south-central block
- the Blight Study conducted by the ESDC concerned only the footprint of the project
- the consultant conducting the Blight Study was hired to conduct a "Blight Study in support of the proposed project," not to more neutrally document neighborhood conditions
- the consultant, AKRF, had always found blight as directed
- the consultant, though initially charged to do so, did not compare market conditions on the project site with conditions nearby (Prospect Heights was already a hot neighborhood, and even pro-Atlantic Yards legislator Roger Green said the area was not blighted)
- the criteria for blight, such a properties built out to less than 60% of allowable development rights, were arbitrary and never promulgated to warn property owners
- blight was not raised as an official justification when Atlantic Yards was announced
![]() |
| June 2003 map |
The state Court of Appeals, with one exception, did not respond to plaintiffs' charges that Forest City drew the map. No wonder law professors from across the ideological spectrum now criticize that Court of Appeals decision.
"My personal view is the New York Court of Appeals basically abdicated any meaningful role for the judiciary in determining whether a blight designation even passed the laugh test," declared Rutgers Law Professor Ronald Chen at a February 2011 symposium.
Forest City's Gilmartin in October 2013 claimed that Atlantic Yards represented "massive blight." Even the Court of Appeals didn't say that:
The land use improvement plan at issue is not directed at the wholesale eradication of slums, but rather at alleviating relatively mild conditions of urban blight principally attributable to a large and, of course, uninhabited subgrade rail cut.(Emphasis added)
The railyard and blight
Only after the arena opened did Forest City Ratner reveal a plan to build four towers on the southeast block of the before constructing a platform for construction over the Vanderbilt Yard. That not only raised questions about whether the project would remove blight--the main justification for eminent domain--in a timely fashion, but also placed litigation over the railyard in a new light.
In an affidavit, Hemmerdinger stated: "The board also took into consideration the tremendous up front investment by the buyer to actually build the platform' over the VD [Vanderbilt] Yard, which must be made before the developer can build the revenue generating portions of the proposal."
That left the impression that only after building the platform could Forest City realize value from its investment.
Yes, only the platform would produce revenue from the air rights directly above it. However, the MTA deal unlocked the revenue-generating potential for the entire project, including the arena; the towers around it on the arena block; and towers on the rest of the project site outside the Vanderbilt Yard.
And those are being built first, according to a tentative timetable (below), which has so far proved accurate.
Accommodating government agencies
Empire State Development, the state agency overseeing/shepherding the arena, was wiling to allow the setbacks for the B4 tower--the largest likely to be built--to be moved closer to narrow Sixth Avenue. See graphic at right.
![]() |
| The B4 changes |
But the process was typically obfuscatory, favoring the developer. The agency gave the public one day notice that it was considering some kind of change, and did not reveal the content of that change unless people attended the board meeting--and those attendees did not get a look at the graphics for another hour, only when the agenda item came up.
Also, the New York City Economic Development Corporation was happy to claim to the Daily News that the arena, in its first year, was a net gain for the city. But it wouldn't release a detailed explanation, nor assess whether it met expectations.
Perhaps the least credible accommodation came in the 2006 Atlantic Yards environmental review, when Empire State Development Corporation claimed the project site would not "experience substantial change in the future without the proposed project... due to the existence of the open rail yard and the low-density industrial zoning regulations."
When the very reasonable possibility of a rezoning was raised, the state authority stonewalled, claiming, "While the City, if it desired, could rezone the project site, it has not."
Now a judge disagrees.
In a case resolved in May 2014 regarding the value of a condemned property within the Atlantic Yards site, Kings County Supreme Court Justice Wayne Saitta agreed with the property owner's argument that the site, without the project, could have become a 12-story hotel, concluding, "Most probably, the entire M1-1 [one-story manufacturing] district in the Atlantic Yards footprint would have been upzoned."
Subsidies, tax-exempt financing, and cheap land
A telling episode in the Atlantic Yards saga came in a 4/2/08 earnings conference call that parent Forest City Enterprises (FCE) held with investment analysis. Then-CEO Chuck Ratner expressed satisfaction in the developer’s relationship with local government, and said he "we still need more" public support.
At the time of the call, Forest City Ratner, FCE's New York subsidiary, had gained $105 million in city subsidies--quietly added after the project was approved--on top of the initially pledged $200 million from the city and state. (City officials now say total city subsidies are $179 million or $171.5 million, not $205 million.)
Since then, FCR gained (beyond other stated subsidies and tax breaks):
- a speed-up in delivery of pledged state and city subsidies
- an additional $31 million for land purchase (allegedly from infrastructure funds)
- a revised deal with the Metropolitan Transportation Authority for the Vanderbilt Yard, with only $20 million down (instead of $100 million), a smaller permanent yard, and a generous 6.5% interest rate to pay back the remaining $80 million
- a Development Agreement with gentle penalties and generous deadlines (12 years for Phase 1, 25 years for Phase 2)--though the timetable in 2014 was revised
“Forest City does not expect to ask for more subsidy,” Gilmartin, then Executive VP, responded carefully. But of course it did, requesting $10 million more in housing subsidies.
Also, another representative of the developer unsuccessfully sought $9 million in state support to rebuild the Carlton Avenue Bridge.
The New York City Independent Budget Office called the arena a net loss to the city even without calculating the housing subsidies or the value of naming rights that the state gave away.
That analysis calculated a huge net gain to Forest City Ratner, based significantly on tax-exempt financing for the arena, a benefit gained mainly at the expense of federal taxpayers. That tax-exempt financing proceeds only through a fig leaf of public ownership, and a financing arrangement that the Treasury Department no longer allows, but grandfathered in for this project.
Also, given that Forest City acquired city land for no cost or low cost--information has not been forthcoming--I estimate perhaps $124 million in uncounted savings.
Affordable housing
Yes, the changing economy understandably put pressure on the Forest City Ratner's ability to fulfill promises regarding the 2,250 unbuilt units of affordable housing.
But even before the economy turned, the developer was claiming (as in the screenshot at right) that 50% of all affordable apartments would be devoted to two- and three-bedroom units rather than, as promised in the Affordable Housing Memorandum of Understanding, 50% of the floor area.
Later, Forest City stopped mentioning that pledge and instead claimed that the goal was that 20% of the units would have two bedrooms.
It took a Freedom of Information Law (FOIL) request for me learn the full back story, in which the only reason the developer got to 20% was a push from the New York City Housing Development Corporation, and the agency acceded, mostly, to Forest City's counterproposal that the additional units be rented not to the families who loudly rallied for the project but households earning six figures.
That story is summarized in an 8/26/12 article for City Limits' Brooklyn Bureau, Agency, Developer Wrestle Over Atlantic Yards Affordability.
As of 2016, as the 461 Dean Street (aka B2) tower is about to open, the largest number of two-bedroom apartments would rent for $3,012. While that figure is below market, it by no means resembles the rent that people clamoring for affordable housing hope to pay.
No wonder an affordable housing advocate helping market the building sounded a bit sheepish about the rent levels.
And, as noted above, the next subsidized towers would be skewed in another way.
The modular plan
Forest City and Empire State Development stressed the innovation involved in the plan to build the first Atlantic Yards tower--and subsequent ones--via modular construction. It would mean fewer trucks, less noise, and less waste at the construction site, and the modular factory will be safer for workers.
More importantly, it was aimed to save Forest City money, since workers at the factory get less pay and, if all worked well, construction in the factory and at the site could proceed simultaneously. Even if the building plan has fewer local impacts, it was never examined publicly. For example, Forest City initially said there would be one "mod" delivered overnight, then changed that to four.
In December 2012, Forest City and ESD prominently stated that modular deliveries would begin, and Forest City invited the media on 12/12/13 to watch the first lifting of "mods" and creation of an apartment. After that, there were no more deliveries for weeks, fueling the conclusion that the initial stacking was just a media event.
![]() |
| B2, from Flatbush Avenue |
Indeed, after claiming that only modular construction would work, the first building was delayed multiple times, and Forest City's new partner/overseer, the Greenland Group, has decided to build the next towers through conventional means.
The B2 tower--stalled, then re-started--is now due to be finished in late 2016, a four-year buildout. (Forest City even lied about the range of affordability in this building, low-balling the number to the New York Times, which had to post a correction.)
Forest City and former partner Skanska are embroiled in bitter lawsuits; Forest City charges Skanska with incompetence, while Skanska says Forest City's plan was inherently flawed.
Only in late 2015 did I learn, thanks to a Freedom of Information Law request, of significant water damage requiring lower floors to be gutted--severe problems that government overseers never discussed publicly. Yet in 2014 Ratner and Gilmartin got a major award that cited the modular innovation.
In early 2016, Gilmartin stated, “We’re not a manufacturing business. It was always imagined that that process would be done by somebody else." Actually, the record proves otherwise.
Lying to City Council
Sometimes the discourse involves not merely obfuscation but lies. At at City Council hearing in January 2013, Council Member Letitia James asked--as shown in the video excerpt below--if any elements of the B2 tower would be built outside the city and state.
Yes, replied Forest City's Ashley Cotton, identifying the steel chassis of the modules. She noted that it's "incredibly noxious, industrial sort of work," not typically done in New York.
"Where will it be built?" asked James.
"Fredericksburg, Virginia," responded Sanna. (Actually, Banker Steel, which also made steel for the Barclays Center arena, is headquartered in Lynchburg, VA.)
"And is that site a union shop?" asked James.
Cotton pushed the microphone past her colleague Melissa Burch toward Executive VP Bob Sanna.
"Yes, for our steel fabricators, yes it is," he responded in a matter-of-fact way.
Seconds later, Cotton turned back toward Sanna and briefly shook her head, a gesture that suggested correction or reproach. She did not, however, inform the Council Members that Banker Steel—run by a big supporter of Republican candidates in a right-to-work state--was not a union shop.
Barclays, the roof logo and the green roof
![]() |
| The new green roof, SHoP rendering 2014 |
It's not a violation, but it sure looks like cheating.
Now Forest City has been installing a green roof--not open to anyone--on the arena, which was never disclosed in any environmental review.
They claim it's for sustainability and esthetics, but it's also aimed to enhance the value of apartments. And state documents acknowledge another important reason: to tamp down noise escaping from the arena. The timing, unsurprisingly, has been delayed, with the cranes delivered in October 2014, not August 2014, as promised.
As of early 2016, the green roof is not finished, though it was supposed to be done by September 2015.
Arena noise
With the initial concerts by Jay-Z, and later concert EDM (electronic dance music) shows 10/26/12 and 10/27/12 called Sensation, pounding bass has penetrated the residences of neighbors on nearby blocks.
The response from the city was to send an inspector to measure noise--according to a neighbor--before the Jay-Z concert started. The community affairs representatives of Empire State Development (ESD) and the Barclays Center didn't respond to queries after the first Sensation show.
But Arana Hankin, then director, Atlantic Yards Project, ESD, did appear on a video for Sensation effusively suggesting, "I can only imagine people will love to have Sensation in their backyards."
They didn't--and while a proposed fine against the arena for Sensation was dismissed on a technicality, the city levied a $3200 fine--pocket change, really--against the arena for noise violations during a Swedish House Mafia show.
Violations of construction protocols
Barclays Center developer Ratner, appearing 9/11/12 on Bloomberg Television's "Surveillance," managed to smoothly rewrite the history of Forest City's noncompliance with construction protocols (noise, dust, traffic) and the state's failure to stop such violations.
The failure goes back to the December 2009 Memorandum of Environmental Commitments (MEC) that FCR negotiated with Empire State Development, the state agency that has the dicey duty of both overseeing and promoting Atlantic Yards. The MEC was supposed to bind Forest City to construction practices that protected the neighborhood.
In fact, according to documents I viewed via a Freedom of Information Law request, the state at one point sought a $10,000 daily penalty for violations of the MEC. Forest City opposed the penalty. The developer prevailed. And, despite Ratner's claims, there have been numerous violations of protocols designed to tamp down dust, noise, and traffic.
![]() |
| Dean Street between Flatbush and Sixth avenues, Sept. 12 |
Neighbors filing reports on Atlantic Yards Watch, with copious photos and video, documented more violations of construction protocols, as trucks get jammed on residential Dean Street or make a wrong-way turn from Sixth Avenue to reach the tight setting of the loading dock.
Not only has ESD neglected oversight, documents suggest the agency and its environmental monitor condoned a cover-up of a Forest City contractor's falsification.
Lingering problems
The Times on Jan. 1, 2013 reported how the arena opened despite more than 1700 defective bolts, a problem not fully disclosed to the Department of Buildings and--as I described--obfuscated in reports from the state agency overseeing the arena as well as the construction monitor for the bond trustee.
Such a divergence between actual conditions and public statements recurred regarding the B2 modular tower.
The impact of arena operations
There has not been the "Carmageddon" that people feared, thanks in part to the availability of and heavy promotion of public transit, as well as the significant decline in expected visitors from New Jersey. (Spending from those former New Jersey Nets fans was supposed to boost city and state coffers.)
However, the arena does not function without significant use of public resources--and the willingness to overlook some localized but significant impacts. Traffic agents have overridden red lights on Flatbush Avenue to advance traffic and police, early in the arena's operation, even shut down Atlantic Avenue so crowds can cross in the middle of the street.
More importantly, and consonant with the construction violations, police have so far tolerated honking, idling limos and livery cabs on adjacent residential streets, including those in No Parking/No Standing zones.
And the loading dock has not operated, as a city official claimed, "seamlessly," but instead has left many trucks waiting or idling on residential streets, as steadily documented on Atlantic Yards Watch.
An arena rep claimed the August 2013 MTV Video Music Awards event was a huge success, but some neighbors disagreed severely.
Those $15 Nets tickets
The arena and team promoters made a bit deal out of the promised 2,000 affordable $15 tickets to Brooklyn Nets games. But those tickets were very elusive.
Some apparently were put up for sale for season tickets. Relatively few were available for before-game purchase--perhaps a few hundred. However, Nets ticket reps, in online chats, misleadingly told potential buyers that not only were there no $15 seats available as season tickets, they would not be available for individual sale.
For the second season, there were be no $15 tickets. The base price was $25. An arena spokesman, dubiously, blamed "scalping," though a more candid explanation came from the CEO. "We did raise our ticket prices in Year Two," Yormark said. "We did decide that, after giving everyone a sampling opportunity, we are a business."
For their third season, the Nets issued a press release claiming "Season ticket prices remain the same from the 2013-14 season and start at $45 per seat." Not true. (For certain games, individual tickets cost less, as the Nets practice variable pricing, while other tickets cost much more.)
The Community Benefits Agreement
Even the Times, which once saluted Forest City Ratner for developing a "modern blueprint" regarding how to harvest local support, acknowledged that the Community Benefits Agreement (CBA) is inherently conflicted. But the picture is far more troubling.
Take, for example, the chair of the CBA coalition: Delia Hunley-Adossa. Her organization, the obliquely named Brooklyn Endeavor Experience, is ostensibly supposed to monitor local environmental impacts. It has mainly a Potemkin responsibility, and has done and said nothing regarding continued violations of construction protocols. Instead, she's more of a cheerleader.
A long article in Next City concluded, "Seven years after the Brooklyn document was signed, five of the groups have been mostly silent or reconstituted after without much fanfare." And even that article was way too gentle.
Indeed, Brooklyn United for Innovative Local Development (BUILD), closed in 2012 after a complaint was filed to the state Attorney General, and a lawsuit lingers, filed by trainees who say they were duped. Meanwhile, Forest City rewrote BUILD's history and blamed Caldwell and BUILD for the promises.
CBA partners are not merely cheerleaders for the project but active partners in distorting the history. Consider how the Downtown Brooklyn Neighborhood Alliance awarded free arena tours to students and then required them to write an essay, "What's the best thing about the Barclays Center."
The Independent Compliance Monitor
After signing the much-promoted CBA in June 2005, as shown in the film Battle for Brooklyn, Ratner claimed that, if there was any failure in compliance, there could be litigation. Mayor Mike Bloomberg intervened: “You have Bruce Ratner’s word. That should be enough for you and everybody else in the community."
The CBA was supposed to require an Independent Compliance Monitor (ICM). In a March 2007 press release, Ratner stated:
“Atlantic Yards is setting a new standard for inclusion and community involvement for a development, and the ICM will be everyone’s watchdog to ensure we reach all of the goals and benefits we have agreed to in the CBA."They've never hired an ICM, and thus saved the $100,000 a year once supposed to be set aside for that role. By 2015, that sum has exceeded $800,000.
Jacobs vs. Moses
According to a 5/2/13 New York Observer article, Forest City's Gilmartin "expressed her admiration for Jane Jacobs, praising her focus on mixed-use development and declaring that: 'It may surprise some given my developer DNA, that I identify more with Jane Jacobs than Robert Moses.'”
It may surprise some, indeed. As architecture critic Paul Goldberger has suggested, "So if there is any way to follow Jane Jacobs, it is to think of her as showing us not a physical model for city form but rather a perceptual model for skepticism."
There's ample reason to be skeptical of Gilmartin and of Forest City, and not just because of Atlantic Yards. The Culture of Cheating extends throughout other corporate behavior.
The Yonkers trial
Forest City Ratner's Ridge Hill retail/office development in Yonkers was the subject of a federal corruption trial that ended in March 2012 with the conviction of the City Council Member who flipped her vote to endorse the project and the fixer who had been providing corrupt payments to her all along--and just happened to ask Forest City Ratner for a job as the negotiations proceeded.

Federal prosecutors, in post-trial motions, make it clear that Forest City, though not criminally liable, benefited hugely from Sandy Annabi's vote--and her failure to disclose her conflict of interest with Zehy Jereis:
Had the public known that Jereis had been giving Annabi hundreds of thousands of dollars over the course of several years, that Jereis and Annabi had a meeting with the Ridge Hill developers before the vote, and that Forest City Ratner promised Jereis a $60,000 no-show consulting contract if Annabi flipped her vote from no to yes, there would very likely have been a clamor for Annabi to be recused from the July 11, 2006 vote on the Ridge Hill Project... The largest development project in the history of New York's fourth largest city might never have been built. Or the developer might have had to make significant concessions.As the trial proceeded, Crain’s New York Business columnist Greg David, generally a friend to developers, commented that Forest City Ratner must be relieved that its “See no evil, hear no evil” posture in Yonkers got so little attention.
Yet ESDC, the state agency overseeing Atlantic Yards, nevertheless claimed that it was confident that Forest City remained a "good corporate citizen."
The record suggests reasons for skepticism.












